6 levensloopwoningen Wemeldinge
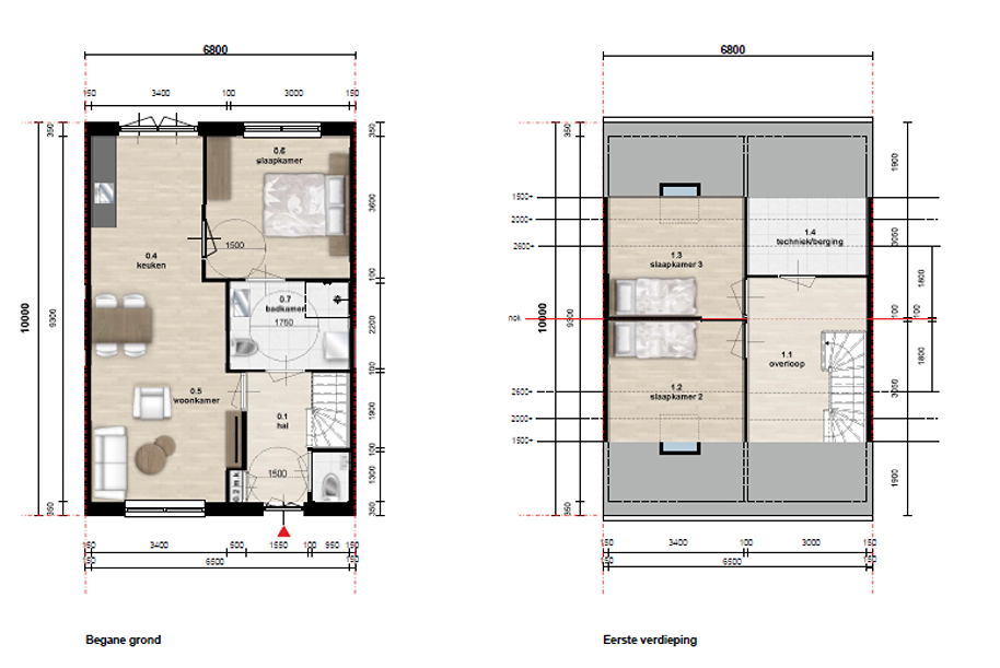
Aan de Bierweg in Wemeldinge worden 12 levensloopwoningen gebouwd verdeeld over twee fases. Een levensloopwoning heeft een volledig woonprogramma op de begane grond. Op de eerste verdieping heeft het woningtype aan de Bierweg nog twee kleine slaapkamers.
Fase 1 bestaat uit 6 levensloopwoningen in de huursector en zijn bedoeld voor 1- of 2-persoonshuishoudens.
In de week van 8 september werden de sleutels van fase 1 overhandigd aan de nieuwe bewoners.
In oktober 2025 gingen de bouwwerkzaamheden voor fase 2 van start. Deze woningen worden in het eerste kwartaal van 2026 geadverteerd op zuidwestwonen.nl. Kijk voor meer informatie over deze woningen bij het project Bierweg fase 2.
