Aan de Waardekensstraat in Kapelle Biezelinge zijn we in oktober gestart met de bouw van 6 eengezinswoningen, 2 levensloopwoningen en 12 appartementen.

Aan de Waardekensstraat in Kapelle Biezelinge zijn we in oktober gestart met de bouw van fase 2. Deze fase bestaat uit 6 eengezinswoningen, 2 levensloopwoningen en 12 appartementen in de huursector. In december worden alle woningen geadverteerd via www.zuidwestwonen.nl. De eengezinswoningen en levensloopwoningen worden medio juli 2026 opgeleverd, de appartementen medio oktober 2026.

In september 2025 werden de sleutels van fase 1 aan de nieuwe bewoners overhandigd. Hierna zijn de werkzaamheden voor fase 2 van start gegaan.

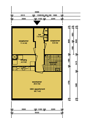
Bekijk hieronder de plattegronden van de verschillende woningtypen:

Hoekwoning

Tussenwoning

Levensloopwoning

Appartement